Göteborg, Sisjön

Datavägen 41

Storlek: 1540 m2
Bostadstyp: Industrial;Logistics;Office;Retail;Warehouse;Other
Tillträde: Enligt överenskommelse
Tillbaka till Lokaler
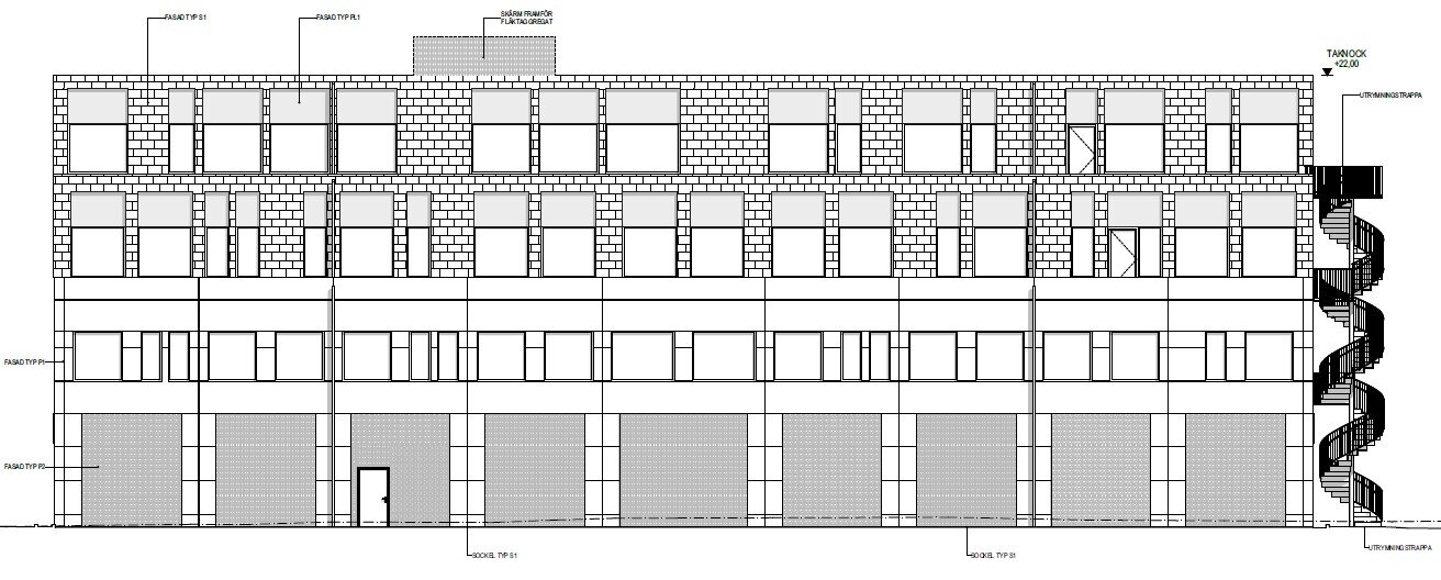
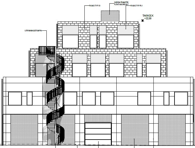
Fantastisk möjlighet att vara med och anpassa när en ny lokal ska byggas i attraktivt läge!

Välkommen till Datavägen 41!

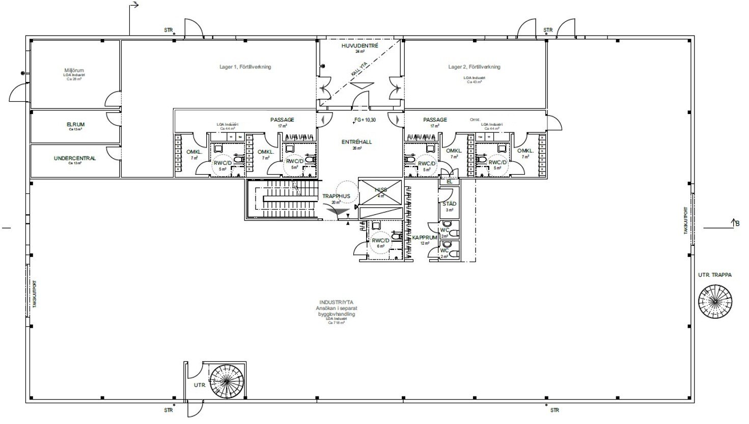
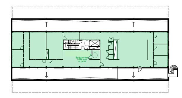
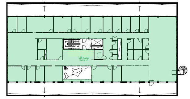
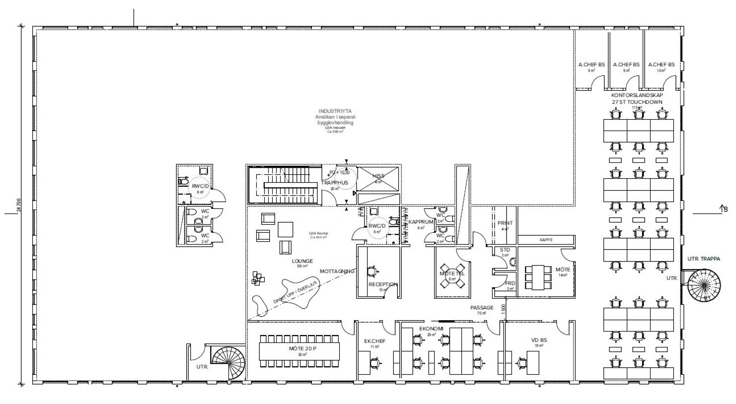
Här finns det nu en unik möjlighet att vara med och anpassa en ny lokal efter era önskemål och behov om 1540-2928 kvm i ett mycket attraktivt område.

Markytan är om totalt 3081 kvm varav 1540 kvm kommer att bebyggas.

Här sitter ni alldeles intill Sisjön handleskluster med goda kommunikationer ut på Söderleden. I området finns god service med träning, restauranger, livsmedelsbutiker, varuhus och mycket mer!

Välkommen till oss på Croisette för ytterligare information och bokning av visning!

Kolla restider

Datavägen 41, 43632 Göteborg

Omgivning

Omgivningen består av ett handelsområde med mycket liv och rörelse, samt servicemöjligheter i alla dess slag.

Företag i närheten

Kvik, Mattlandet, Elon, Sats, XXL, Clas Ohlson, Willys, Biltema, m.fl...

Närservice

Med sitt läge alldeles intill Sisjöns handelsområde finns här all tänkbar service i form av restauranger, handel, gym, apotek, bilvård, golfklubb och mycket mer!

Alla lediga objekt