Göteborg

F O Petersons gata 30

Storlek: 710 m2
Bostadstyp: Other;Office
Tillträde: 2026-07-01
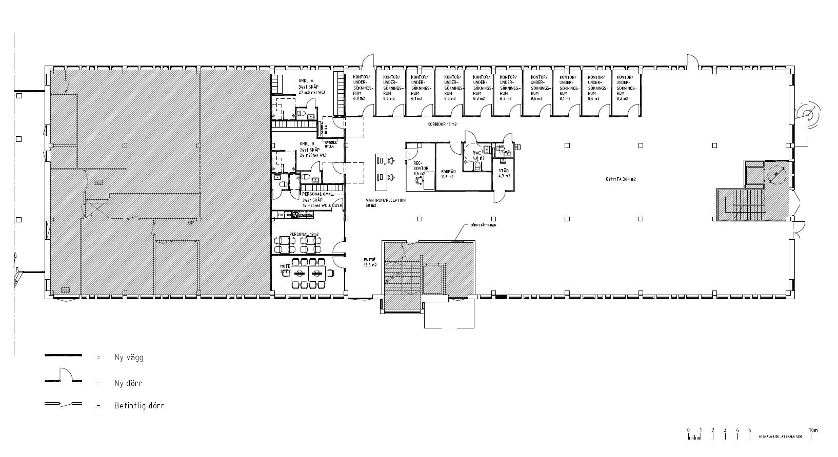
Planritning
Tillbaka till Lokaler
Skapa just din arbetsmiljö i ett mycket bra läge alldeles intill Radiomotet!

Välkommen till denna ljusa och välplanerade lokal på markplan, belägen på F O Petersons gata 30. Med sina 710 kvm erbjuder denna lokal en fantastisk möjlighet att skapa den arbetsmiljö som passar just er verksamhet, oavsett om ni söker en rehab- eller träningslokal, eller om ni har behov av moderna kontorsutrymmen.

Idag är lokalen optimerad för rehab- och träningsverksamhet, men kan enkelt anpassas efter olika behov. Den stora, öppna ytan ger stor flexibilitet och kan enkelt delas upp eller anpassas för nya ändamål. Här finns också nio kontors- eller undersökningsrum, vilket gör den perfekt för exempelvis vård, behandling eller arbetsgrupper som kräver privata rum. De tre omklädningsrummen, tillsammans med ett personalrum som inkluderar en välkomnande pausyta och ett funktionellt pentry, gör det här till en praktisk och trivsam arbetsplats för hela teamet.

Lokalen ligger i markplan och har en lättillgänglig entré, vilket gör det enkelt för både kunder och anställda att komma och gå. Med en central placering och goda kommunikationer finns här stor potential att utveckla en verksamhet som växer.

Välkommen till oss på Croisette för ytterligare information och tidsbokning för visning!

Kolla restider

F O Petersons gata 30, 42131 Göteborg

Omgivning

F O Petersons gata 30 ligger i stadsdelen Högsbo i sydvästra Göteborg, nära stadens centrum. Området har en strategisk placering med smidig anslutning till de stora trafiklederna Dag Hammarskjöldsleden och Söderleden, vilket gör det lättillgängligt för biltrafik. Dessutom är det beläget utanför vägtullszonen och erbjuder cykelavstånd till stadskärnan. Högsbo har genomgått en omvandling från ett traditionellt industriområde till en plats med blandad användning, och framtida bostadsprojekt som kommer att tillföra nya bostäder, arbetsplatser och service. Området gränsar även till Änggårdsbergen, ett naturreservat som bidrar till en grön och trivsam miljö.

Företag i närheten

Wantech AB, XER Management AB, Bic Nordic AB, Skylt & Gravyrteknik i Sverige AB, Husknuten, Max Burgers, NetOnNet, m.fl.

Närservice

Servicen i närheten är väldigt god med en mix av lunchrestauranger, handel med köpcentret 421 ett stenkast från lokalen där ett flertal butiker och service som bland annat ICA Maxi, H&M och mycket mer finns. Goda kollektivtrafikförbindelser via busshållplatsen Radiomotet gör området lättillgängligt även för pendlare​.

Alla lediga objekt