Göteborg

Folkungagatan 13

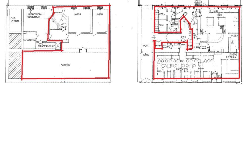
Storlek: 294 m2
Bostadstyp: Restaurang
Tillträde: Enligt överenskommelse
Planritning
Tillbaka till Lokaler
Restauranglokal med stor potential på Folkungagatan 13

Nu finns möjligheten att hyra denna restauranglokal med mycket god potential på attraktivt läge i Göteborg. Här har nästa hyresgäst möjlighet att sätta sin egen prägel och skapa en restaurangupplevelse i egen stil.

- Yta: 164 kvm i markplan, anpassad för restaurangverksamhet med kök i bakkant.

- Källarplan: 130 kvm med fettavskiljare samt isoleringsväggar som kan användas för kylrum vid behov.

- Flexibilitet: Lokalen anpassas i dialog med nästa hyresgäst för att optimera verksamheten.

- Övrigt: Möjlighet till uteservering finns.

Som bilderna visar så är lokalen i behov av renovering, visionsbilder är därför framtagna för att visa dess potential. Här erbjuds en perfekt bas för dig som vill etablera en ny restaurang eller vidareutveckla ditt nuvarande koncept i en lokal med stor potential och bra grundförutsättningar.

Välkommen till oss på Croisette för ytterligare information och bokning av visning!

Kolla restider

Folkungagatan 13, 41102 Göteborg

Omgivning

Området kring Folkungagatan är en levande stadsdel som kombinerar närhet till city med ett rikt utbud av bostäder, kontor och service. Här finns flera gymnasieskolor, arbetsplatser och butiker som skapar ett jämnt flöde av människor under hela dagen. Bebyggelsen är blandad med både äldre charm och nyproducerade bostadshus, vilket gör området attraktivt för såväl unga som familjer. I närheten finns också grönområden och parker som ger möjlighet till avkoppling, liksom goda kommunikationer som gör det lätt att ta sig hit oavsett färdmedel.

Företag i närheten

Kollektivet kontorshotell, Jinx, Evolushi Stampgatan, DOZ Apotek, Coop, Benne Pastabar, Gelato Station, Happy Days, Ngon Restaurang, Bruket, m.fl.

Närservice

I närområdet finns ett brett utbud av närservice som underlättar både vardag och verksamhet. På kort gångavstånd når du Centralstationen, vilket gör läget smidigt för både anställda och besökare. I området finns flera restauranger, caféer, mataffärer och servicebutiker, samt gym och apotek. Det är ett område som erbjuder både bekvämlighet och puls – perfekt för dig som vill driva verksamhet med allt du behöver nära till hands.

Alla lediga objekt