Göteborg

Gullbergs Strandgata 15

Storlek: 1500 - 2995 m2
Bostadstyp: Kontor
Tillträde: Enligt överenskommelse
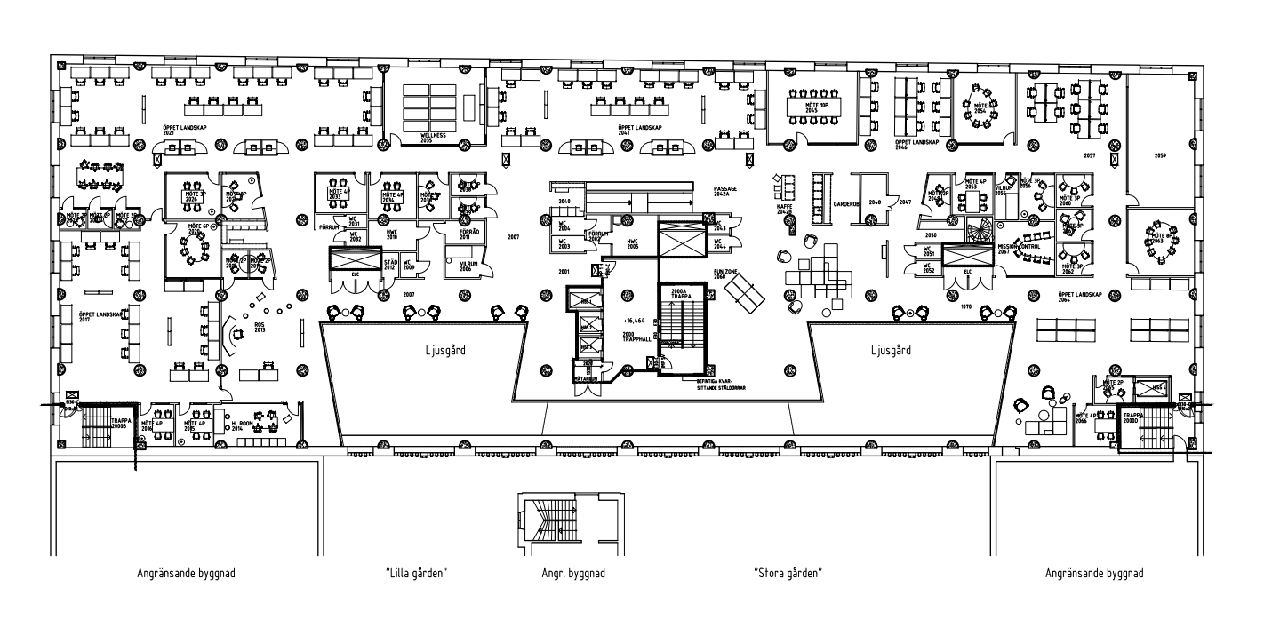
Planritning
Tillbaka till Lokaler
Unik kontorslokal i Pagoden – modern elegans med rymd och karaktär

Välkommen till en kontorslokal utöver det vanliga – en plats där historia möter modern funktionalitet i en miljö som inspirerar. Denna nyrenoverade lokal om totalt 2995 kvm, fördelat i två plan, i vackra Pagoden erbjuder ett stilfullt och modernt kontor med exklusiva materialval och en genomtänkt planlösning.

Markplan – mötesplats och pulserande hjärta:
Det nedre planet om ca 1000 kvm bjuder in med en representativ reception och en imponerande matplats, belägen i en ljusgård med 12 meters takhöjd som skapar en mäktig rymd genom hela byggnaden. Här finns även flera mötes- och konferensrum för både interna och externa möten, vilket gör detta plan till en naturlig samlingspunkt.

Övre plan – effektivitet och interaktion:
En trappa upp öppnar sig generösa ytor om 2000 kvm med öppna kontorslandskap, fler konferens- och mötesrum, samt inbjudande loungeytor för kreativt arbete, spontana samtal eller en paus i vardagen. Från detta plan har du dessutom utsikt ner i ljusgården – en ständig påminnelse om lokalens unika karaktär.

Kapacitet och funktioner:

- Upp till 230 arbetsplatser

- 32 mötesrum i varierande storlekar

- 11 WC

- Stora, flexibla sociala ytor för event, personalmöten och mingel

- Takhöjd om 4–5 meter även på övre plan

Möjlighet att dela lokalen
Lokalen kan delas upp i två, där ni har möjlighet att hyra in er på halva ytan, om 2995 kvm blir för stort. Då kan lokalen delas upp på två hyresgäster, där det nedre planet delas med en annan hyresgäst och det övre planet delas upp om 1000 kvm var.

En lokal som måste upplevas på plats för att förstås. Missa inte chansen att etablera ert företag i ett av Göteborgs mest unika kontor.

Välkommen till oss på Croisette för ytterligare information och bokning av visning!

Kolla restider

Gullbergs Strandgata 15, 41104 Göteborg

Omgivning

Pagodenområdet som är ett område där Göteborgs industrihistoria sitter i väggarna har en ny typ av arbetsmiljö vuxit fram. Här, i byggnader som en gång rymde både Vin & Sprit och Swedish Match, möts dåtidens hantverk med dagens krav på funktion och form. Med sina över 40 000 kvm kontorsyta erbjuder Pagodenområdet mer än bara kvadratmeter – det är en miljö med rå estetik, tydlig karaktär och inspirerande energi. Betong, tegel och puts bildar en unik kuliss för företag som vill arbeta i en miljö som sticker ut, stimulerar kreativiteten och stärker identiteten.

Företag i närheten

Restaurang Pagoden, Monopolet, Holship Sverige AB, We Are More, Elos Medtech AB, Specsavers Sweden AB, m.fl.

Närservice

På Gullbergs Strandgata 15 finns allt som behövs för en smidig och trivsam arbetsdag. I huset finns två restauranger och i området finns även gym, padelbana och ett utegym – perfekt för både lunchpausen och friskvården. Den grönskande gården bjuder dessutom in till arbete utomhus när vädret tillåter. Området erbjuder goda parkeringsmöjligheter, cykelgarage med omklädningsrum och dusch. Med endast 5 minuters promenad till Centralstationen finns här goda kommunikationer med regionaltåg, bussar och spårvagnar.

Alla lediga objekt