Göteborg, Järntorget

Masthamnsgatan 1

Storlek: 722 m2
Bostadstyp: Kontor
Tillträde: Enligt överenskommelse
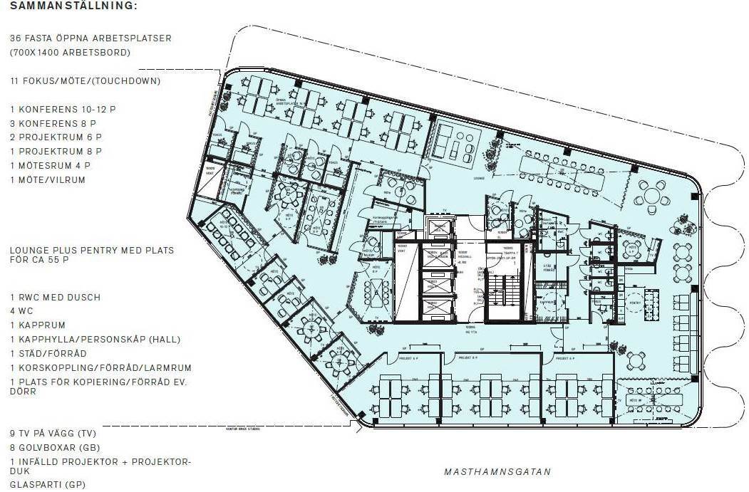
Planritning
Tillbaka till Lokaler
Stilrent kontor med öppna ytor, mötesrum och kök – nära kommunikationer och city!

Välkommen till Masthamnsgatan 1!

Nu finns det möjlighet att hyra denna moderna och inflyttningsklara kontorslokal om totalt 722 kvm – strategiskt belägen med närhet till Oscarsleden och ett stenkast från Järntorget.

Lokalen erbjuder en genomtänkt och blandad planlösning med en hög standard. Lokalen har en blaning av kontorsrum i olika storlekar, konferensrum, öppna ytor samt ett stort kök.

I fastigheten finns god service med restauranger, gym och cykelrum. Som hyresgäst har du även tillgång till en gemensam takterrass med fantastisk utsikt över både staden och vattnet!

Välkommen till oss för bokning av visning och ytterligare information!

Kolla restider

Masthamnsgatan 1, 41329 Göteborg

Omgivning

Masthuggskajen är en ny stadsdel som växer fram alldeles intill Göta Älv och stadens puls.

Företag i närheten

Här sitter alla möjliga tänkbar bolag!

Närservice

Här sitter du med ett stort serviceutbud i närheten!

Alla lediga objekt