Askim, Askim

Pilegården 1C

Storlek: 50 m2
Bostadstyp: Office;Retail;Warehouse;Other
Tillträde: Enligt överenskommelse
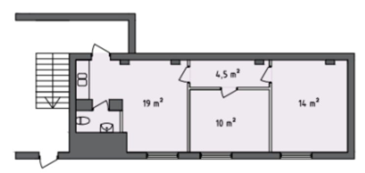
Planritning
Tillbaka till Lokaler
Ljus och trevlig lokal på markplan i Askim!

Välkommen till Pilegården 1C!

Här finns det möjlighet att hyra denna fint renoverade lokal om 50 kvm på markplan i Askim. Lokalen har stora och härliga fönster som bidrar till en ljus och härlig miljö.

Lokalen har en rumsindelad planlösning och är utrustad med kök/pentry och WC. Ytan är flexibel och kan anpassas efter behov och önskemål.

Denna lokal passar perfekt för butik, kontor, utbildning eller showroom.

Välkommen till oss på Croisette för ytterligare information och bokning av visning!

Kolla restider

Pilegården 1C, 43635 Askim

Omgivning

Här sitter du med en lugn, grön och bostadsnära miljö med närhet till både natur och stad.

Företag i närheten

NetOnNet, HusKnuten, Sportson, Max Burgers, BurgerKing, Renders Tegel, m.fl...

Närservice

Här sitter du med gott om lunchrestauranger i närheten och all tänkbar shopping och service i Sisjön och Frölunda Torg!

Alla lediga objekt