Göteborg, Eriksberg

Pilegårdsgatan 4

Storlek: 130 m2
Bostadstyp: Office;Retail;Warehouse;Other
Tillträde: Enligt överenskommelse.
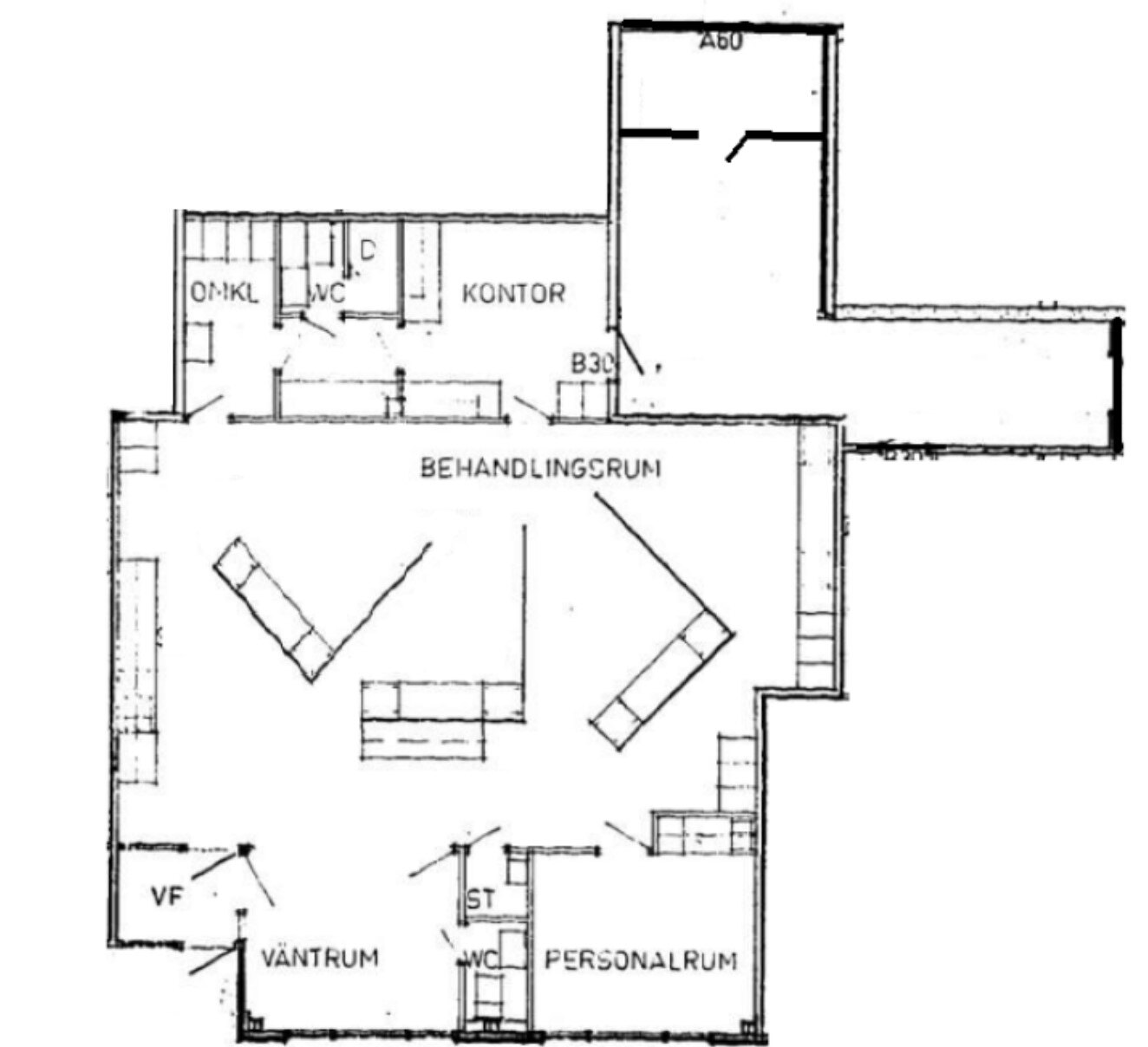
Planritning
Tillbaka till Lokaler
Rymlig lokal som passar perfekt för vårdverksamhet!

Välkommen till Pilegårdsgatan 4!

Här finner du en rymlig lokal om 130 kvm i en lugn och fridfull del av Göteborg!

Lokalen har tidigare varit en tandläkarklinik och är nu tillgänglig att hyra som vårdlokal.

Lokalen har en blandad planlösning med rum i olika storlekar och är utrustad med två stycken WC, omklädningsrum och dusch. Ytorna är flexibla och kan anpassas efter behov och önskemål.

Denna lokal är perfekt för verksamheter som läkarmottagning, fysioterapi eller psykoterapi och erbjuder en ljus och luftig miljö för dina patienter. Lokalen är även lämplig för tandvård och kan enkelt anpassas efter dina behov.

Grymt skyltläge mot vägen!

Det går att utöka ytan med 30 kvm så att totalytan blir 160 kvm om så önskas.

Välkommen till oss på Croisette för ytterligare information och bokning av visning!

Kolla restider

Pilegårdsgatan 4, 41877 Göteborg

Omgivning

Erikbergs och Norra Älvstranden har genomgått en enorm utveckling de senaste 20 åren, från ett slumrande hamnområde till ett av Göteborgs mest attraktiva bostadsområden. I takt med nya bostäder har området även fått tillskott av många olika butiker och andra verksamheter som har etablerat sig och tillsammans skapat en fullt utvecklad stadsdel med stor attraktionskraft!

Företag i närheten

Friskis&Svettis, Krog Axet, Donnergymnasiet, frisör, hotell, café och restauranger

Närservice

I området finns gott om service - lunchrestauranger, gym, frisör, friskvård, skola och annat.

Alla lediga objekt