Göteborg

Ringögatan 7

Storlek: 979 m2
Bostadstyp: Office;Retail;Warehouse;Other
Tillträde: Enligt överenskommelse
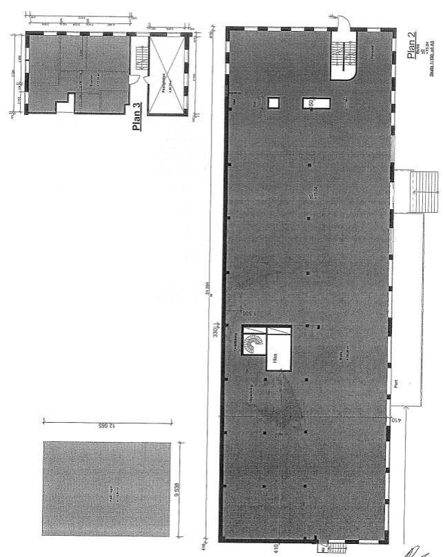
Planritning
Tillbaka till Lokaler
Flexibla ytor i inägnat område på Ringön med grym exponering!

Välkommen till Ringögatan 7!

Här finns det möjlighet att hyra denna flexibla kombilokal med kalllager, kontor, lager/butik om totalt 979 kvm i ett grymt läge och fantastiskt skyltläge ut mot vägen!

Lokalen är uppdelad enligt följande:

Butiksyta - 786 kvm
Kalllager - 120 kvm
Kontor, personalutrymmen och omklädningsrum - 73 kvm
Huvudbyggnaden är utrustad med en port med lastbrygga för smidig logistik och åtkomst för större fordon.

I direkt anslutning finns ett kallager om 120 kvm med bra takhöjd och stor port - perfekt som extra förvaringsutrymme.

Kontorsdelen tillsammans med personalutrymmen och omklädningsrum är belägna en trappa upp och nås smidigt via en interntrappa.

Ringögatan 7 erbjuder inte bara funktionalitet – utan även ett läge som ger snabb access till centrala Göteborg och de stora trafiklederna. En perfekt lokal för verksamheter som söker moderna, flexibla ytor i ett logistiskt starkt område.

Välkommen till oss på Croisette för ytterligare information och bokning av visning!

Kolla restider

Ringögatan 7, 41707 Göteborg

Omgivning

Ringön är ett levande verksamhetsområde med stark industriell prägel och ett växande inslag av kreativa verksamheter. Här möts verkstäder, lager och logistik med allt från konstnärsateljéer till mikrobryggerier, vilket skapar en dynamisk och lite annorlunda atmosfär. Området har en genuin karaktär och utvecklas snabbt, samtidigt som närheten till Göta älv och centrala Göteborg gör läget både praktiskt och attraktivt för många typer av företag.

Företag i närheten

Carspect, Inet, AD Butik, Mercus Yrkeskläder, Flügger, MECA, Elis Textil Service AB, m.fl..

Närservice

Här finns ett brett utbud av service inom nära räckhåll – allt från lunchrestauranger, caféer, till bilverkstäder, bygghandlare och grossister. I närområdet hittar du även gym, återvinningscentral samt bensin- och laddstationer. För större ärenden är Backaplan och centrala Göteborg endast några minuter bort med bil.

Alla lediga objekt