Göteborg, Ringön

Stålverksgatan 4C

Storlek: 1100 m2
Bostadstyp: Industrial;Office;Warehouse;Other;Retail
Tillträde: Q4 2025
Tillbaka till Lokaler
Flexibel kombilokal med kontor och lager i grymt läge!

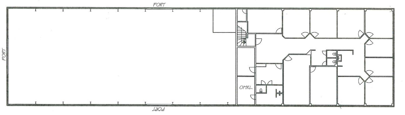
Välkommen till Stålverksgatan 4C!

Nu finns möjligheten att hyra denna kombilokal om totalt 1 100 kvm, fördelad på lager, höglager och kontor.

Lokalen har egen entré direkt från Stålverksgatan och erbjuder en smidig logistiklösning med tre portar och 5,8 meter i takhöjd i höglagret. På ovanvåningen finns 300 kvm kontor i fint skick, kompletterat med omklädningsrum.

Fakta:
Höglager: 500 kvm, 5,8 m till balk
Lager: 300 kvm
Kontor: 300 kvm
Antal portar: 3

Den strategiska placeringen ger enkel access till stora trafikleder och goda transportmöjligheter.

Det finns gott om parkering på fastigheten.

Välkommen till oss på Croisette för ytterligare information och bokning av visning!

Kolla restider

Stålverksgatan 4C, 41707 Göteborg

Omgivning

Ringön är ett känt industriområde i Göteborg, med flertalet kreativa aktörer i alla dess former.

Företag i närheten

Elis Textil Service AB, Renta Ringön, EB Kylservice i väst AB, Mattr Collective AB, Signet Sign System, Ebn i Göteborg AB, ASKO AB STORKÖKSUTRUSTNING, Ramirent AB Göteborg, m.fl..

Närservice

I området finns det servicemöjligheter i olika former, så som bland annat restauranger, handel och padel.

Alla lediga objekt