Göteborg

Byggvägen 4

Storlek: 1770 m2
Bostadstyp: Logistics;Warehouse
Tillträde: Enligt överenskommelse
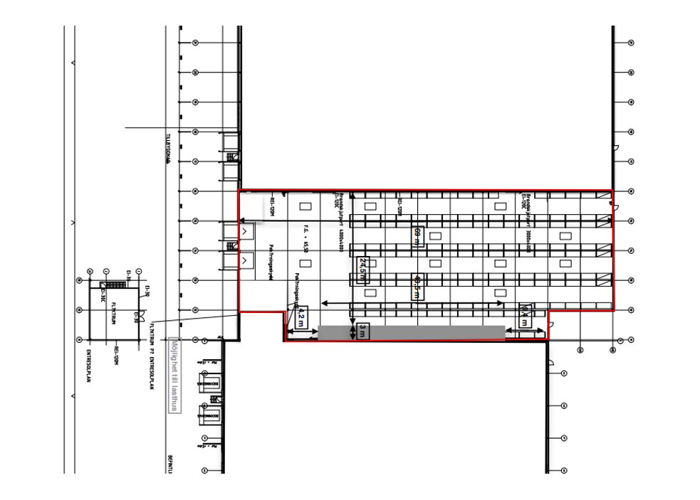
Planritning
Tillbaka till Lokaler
Lagerlokal i attraktiva Stenkullen

På Byggvägen 4 hittar du denna lagerlokal om 1770 kvm
som kan anpassas efter era behov och önskemål. I lokalen finns omklädning för dam och herr, samt pentry.
Lokalen har en en fri takhöjd om 8,7 meter och två styck väderskyddade lasthus.

I bakre delen av lokalen finns möjlighet att öppna upp för markport, i anslutning till denna del finns även möjlig uppställningsyta.

Välkommen till oss på Croisette för ytterligare information och bokning av visning!

Kolla restider

Byggvägen 4, 44361 Göteborg

Omgivning

Stenkullens industriområde är ett väletablerat verksamhetsområde med en blandning av företag inom lager, logistik, lätt industri och service.

Företag i närheten

Här finns etablerade aktörer som Piwa Food AB, Beijer Byggmaterial, Colorama och Carglass.

Närservice

I området finns lunchrestauranger, butiker i olika former, bilservice, gym, m.m. Med en 10-15 minuters promenad når du Stenkullen Station, där Västtågen tar dig till Göteborg på 25 minuter.

Alla lediga objekt