Ta del av vår sekretesspolicy.
Lund, STUDIO115

Magistratsvägen 14D

1 695 000 SEK utgångspris
Avgift: 4 225 SEK
Inkl. värme, kallvatten, TV/bredband samt allmän renhållning i föreningen. Kostnad för hushållsel samt uppvärmning av tappvatten tillkommer och debiteras efter individuell uppmätt förbrukning.
Boarea: 48 m2
Rum : 2
Våning: 1 av 5
En halvtrappa upp.
Hiss: Ja
Hiss från markplan från gatunivå, entréplan via gård.
Tillbaka till Bostäder
Välplanerad och nyproducerad 2:a- flexibelt tillträde!

Välkommen till denna stilrena tvåa om 48 kvadratmeter – bli den första att flytta in i denna nyproducerade lägenhet med stilrena materialval och smart planlösning med flexibelt tillträde! Lägenheten bjuder på öppen planlösning och vardagsrum med fransk balkong.

Sovrummet har gott om plats för både dubbelsäng och förvaring. Det rymliga badrummet är fullt utrustat med kombimaskin och förvaring– perfekt för en bekväm vardag.

Den gröna innergården ger plats för både avkoppling och gemenskap, med sittgrupper, ett utegym och växtlighet som främjar biologisk mångfald. Föreningen erbjuder dessutom både cykel- och bilpool, samt gott om cykelparkeringar – ett hem som gör det enkelt att leva både hållbart och bekvämt.

Här bor du på optimalt läge nära Lunds framväxande innovationscentrum med närhet till LTH, Ideon Science Park, MAX IV och Medicon Village. Från bostaden tar det endast 11 minuter med buss till Lunds centrum och cirka 30 minuter till Malmö. I närområdet hittar du stora matbutiker, restauranger, gym, löparspår och Delphinenbadet för en aktiv fritid. Fastighetens smarta lösningar med solceller, cykelpool, bilpool och effektiv avfallshantering ger dig möjlighet att leva miljömedvetet.

Välkommen att boka visning!

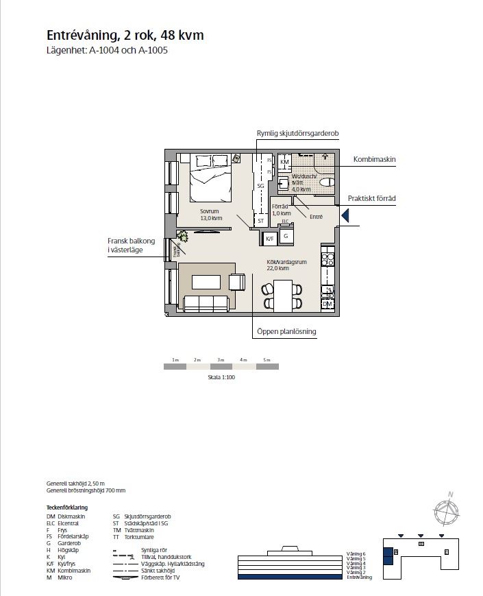
Bostadsbeskrivning

Rumsbeskrivning

Hall

Vi når lägenheten, som ligger en halvtrappa upp, via hiss och trappa från trapphus via Magistratsvägen och markplan via entré från gården. I hallen finns plats för att hänga av sig och förvaring i form av bostadens förråd. Bostaden har genomgående ekparkett i hela lägenheten samt vitmålade väggar.

Badrum

Via hallen når ni bostadens badrum. Här finner ni ett rymligt och helkaklat badrum som är utrustat med dusch, handfat med kommod, spegelskåp, kombimaskin med ovanliggande bänkskiva och vägghängt förvaringsskåp. Stilrent grå klinker på golvet och vitt kakel på väggarna.

Kök

Vidare in i lägenheten finner kök och vardagsrum i öppen planlösning med vardagsrummet. Köket från Marbodal är stilrent med vita luckor, grå laminatbänkskiva och vitt kakel som stänkskydd. Vitvarorna består av rostfri kyl/frys, rostfri diskmaskin, induktionshäll, inbyggnadsugn, inbyggnadsmikro och spisfläkt.

Vardagsrum

I öppen planlösning med köket finner ni vardagsrummet. Här finns gott om plats att möblera med soffa och matplats. I vardagsrummet har ni även fransk balkong, perfekt för vädring.

Sovrum

Via vardagsrummet når ni bostadens sovrum som har plats för dubbelsäng samt generös förvaring i form av skjutdörrsgarderob längs ena väggen i rummet.

Basfakta

Upplåtelseform:

Bostadsrätt

Typ:

Lägenhet

Boarea:

48 kvm

Antal rum:

2

TV & Bredband:

Föreningen har gemensamt abonnemang för TV/bredband, ingår i avgiften.

Beskrivning uteplats:

Fransk balkong.

Beskrivning bilplats:

Boende i Brf Studio115 har möjlighet att hyra parkering i garage i fastigheten bredvid.

Andel i föreningen:

0.9384 %

Bostadsrättens indirekta nettoskuldsättning:

635 954 SEK

Kommentar till den indirekta nettoskuldsättningen:

Enligt ekonomisk plan.

Lägenhetsnummer förening:

A1005

Lägenhetsnummer register:

1005

Pantsättning:

Bostaden är inte pantsatt

Byggnad

Fastighetsbeteckning:

Fastighetsboken 3

Byggnadstyp:

Flerbostadshus

Byggnadsår:

2024

Fönster:

Trä med aluminiumbeklädd utsida och isolerglas.

Uppvärmning:

Fjärrvärme

Ventilationstyp:

Mekanisk, till- och frånluft med värmeåtervinning

Renoveringar:

Nyproducerat hus.

Energideklaration:

Energiklass: C
Primärenergital: 63kWh/m² och år
Energideklaration: Utförd
Datum: 5 feb, 2024

Driftkostnad

Elkostnad:

5 280 SEK/år

Vatten och avlopp:

1 680 SEK/år

Kommentar:

Driftkostnaderna är baserade på en schablon. Kostnad förvatten avser kostnad för varmvatten.

Förening

Namn:

Brf STUDIO 115

Organisationsnummer:

769640-6854

Organisationsform:

Bostadsrättsförening

Allmänt om föreningen:

Brf Studio 115 består av ett flerbostadshus med 4-6 våningsplan.

Rum för barnvagn, cyklar och rullstolar samt undercentral finns på markplan. Samtliga lägenheter har förråd placerade i eller utanför lägenhet. Cyklar parkeras i cykelställ på innergård.

Äger föreningen marken?:

Ja

E-post:

styrelsen@studio115.se

Äkta bostadsrättsförening:

Ja

Parkering:

Servitutsavtal för upp till 48 garageplatser i garage på Fastighetsboken 1.

Renoveringar:

Nyproducerad lägenhet från 2024.

Tillåter föreningen juridisk person som köpare:

Ej angivet

Antal lägenheter:

115

Överlåtelseavgift betalas av:

Säljare

Allmänt

I avgiften ingår värme, kallvatten, TV/bredband samt allmän renhållning i föreningen. Kostnad för hushållsel samt uppvärmning av tappvatten tillkommer och debiteras efter individuell uppmätt förbrukning.

Föreningen tecknar gemensamt avtal för alla föreningens medlemmar gällande vatten och el. Detta innebär att du inte behöver ha något eget abonnemang. För alla lägenheter finns separata avläsare för förbrukning av varmvatten och hushållsel. Som boende betalar du en schablonsumma i förskott varje månad för förbrukningen, vid årets slut görs en avstämning av den faktiska förbrukningen jämfört med den förskottsbetalda.

Förråd finns i lägenheten.

Omgivning

Allmänt om området:

STUDIO115 är ett kvarter mittemellan Lunds tech-hubbar, på ett smidigt avstånd till stadens utvecklingscentrum och akademiska centrum Lunds universitet. Här hittar du ett kvarter med moderna yteffektiva bostadsrätter med solceller på taken och en grönskande innergård. Perfekt för dig som vill bo bekymmersfritt på precis rätt läge i Lund.
En kort cykeltur från STUDIO115 väntar Sankt Hans Backar med sina gröna strövområden. Här kopplar du enkelt av och ned från arbete, studier och myllret på universitetet och i staden.
Närhet till både Smörlyckans idrottsplats och Delphinenbadet som är en stor anläggning med tillgång till motionssimning i pool och pass i ett välutrustat gym, inomhus såväl som utomhus.
STUDIO115 har ett perfekt läge för dig som vill bo nära stadens utvecklingscentrum för arbete och studier. På ett smidigt avstånd hemifrån ligger Ideon Science Park som sedan 35 år tillbaka är kopplad till universitet och för samman forskning, entreprenörskap och innovationer. Inte långt därifrån hittar du Medicon Village som är världsledande inom Life Science.

En skön cykeltur från kvarteret eller tio minuter med buss som avgår på gatan utanför ringlar Lunds pittoreska kullerstensgator med korsvirkeshus, uteserveringar och små butiker fram.

Närservice:

Matbutiker, restaurang.

Kommunikation:

Stadsbussar samt regionsbussar ett stenkast bort.

Parkering:

Boende i Brf Studio115 har möjlighet att hyra parkering i garage i fastigheten bredvid.

Viktig information

ALLMÄN INFORMATION:
De uppgifter som lämnas i objektsbeskrivning, prospekt samt annat informationsmaterial är i huvudsak grundade på information lämnad av bostadsrättsförening och byggherre och dess och dess hemsida om sådan finnes. Dessa uppgifter kontrolleras av fastighetsmäklaren endast om omständigheterna ger anledning till det. Köpare/spekulanter uppmanas att kontrollera uppgifter rörande exempelvis lediga p-platser, förråd, tvättstuga, andra utrymmen tillhörande föreningen, eventuella avgiftsförändringar samt annat av betydelse för köpet av bostadsrätten. Köpare/spekulanter uppmanas också att kontrollera kostnadskalkyl/ekonomiskplan samt stadgar för föreningen

UNDERSÖKNINGSPLIKT ETC:
Utgångspunkt för ansvarsfördelningen vid upplåtelse av bostadsrätt;
Bostadsrätten ska efter köpet stämma överens med vad som avtalats mellan köpare och säljare samt vad köparen har fog att förvänta sig; sett i ljuset av bostadsrättens ålder, pris, skick och användning. Reglerna om fel i bostadsrätt finns i köplagen (eftersom en bostadsrätt är lös egendom) men vid prövning av fel och felansvar hämtas ofta inspiration från reglerna i jordabalken. En del av reglerna har också bildats genom praxis, efter att tvister om fel och felansvar har prövats av domstol.
Köparens undersökningsplikt;

Köparens undersökning av bostadsrätten möjliggörs i regel genom att en visning av bostaden genomförs. Vid nyproduktion, då man ej kan se bostaden fysiskt, kan man fullgöra undersökningsplikten genom att kontrollera säljmaterialet och kostnadskalkyl/ekonomiskplan och stadgar samt därtill hörande handlingar, köparen uppmanas också att informera sig om vad som sker i närområdet med byggnation och dylikt.
Säljaren ansvarar för utfästelser som säljaren lämnar. Utfästelser kan innebära att köparens skyldighet att undersöka visst förhållande minskas som följd av en sådan. Allmänt lovprisande eller generella uttalanden betraktas dock inte som utfästelser.

Avtalsfrihet
Denna information beskriver, kortfattat, den ansvarsfördelning som enligt lag gäller mellan köpare och säljare. Emellertid råder avtalsfrihet i frågan om ansvarsfördelningen vilket innebär att parterna kan avtala om en annan fördelning än den som beskrivits ovan. Som exempel kan nämnas när en säljare friskriver sig från ansvar genom en friskrivningsklausul, eller när en dolda fel-försäkring tecknas för objektet.

DRIFTSKOSTNADER:
Driftskostnader som anges kan vara antingen verklig förbrukning för det specifika objektet alternativt schablonmässiga uppskattningar. Beroende på typ av driftskostnad så kan den vara specificerad antingen under driftskostnader eller i årsavgiften. Hemförsäkringen och förbrukning av hushållsel är i normalfallet inte en sådan driftskostnad som anges om de inte är obligatoriska tillägg till årsavgiften.

ÖVRIGA KOSTNADER:
Föreningen eller den ekonomiska förvaltaren har möjlighet att ta ut en pantsättningsavgift på 1 % av prisbasbeloppet om man pantsätter bostadsrätten. Eventuell medlemsavgift till föreningen kan också förekomma. För närmre information vänligen se stadgarna eller konsultera ansvarig mäklare.

BUDGIVNING:
Vid köp av nyproduktion erbjuds oftast fast pris, vid eventuella bud vidarebefordrar mäklaren samtliga bud och meddelanden till säljaren som inkommer innan köpeavtal har undertecknats. Vi tillämpar öppen budgivning, vilket innebär att fastighetsmäklaren i normalfallet löpande redovisar högsta budet till säljare och övriga budgivare. Säljaren behöver inte sälja till den som givit högsta budet. Fastighetsmäklaren fattar inga egna beslut i fråga om försäljningen, det är hela tiden säljaren som bestämmer. Avsteg från den öppna budgivningen kan göras på säljarens inrådan om villkorade bud inkommer. Detta kan bland annat innebära att spekulanter/budgivare inte får reda på alla bud som läggs.

BOENDEKOSTNADSKALKYL:
Köpare/spekulanter har rätt att i god tid före köpet få en individuell boendekostnadskalkyl upprättad om så önskas. Köpare/spekulanter uppmanas att kontakta fastighetsmäklaren för att få denna kalkyl upprättad.

FASTIGHETSMÄKLARENS SIDOTJÄNSTER:
Enligt lag får mäklare erbjuda sidotjänster så länge dessa inte är förtroenderubbande och eventuell ersättning endast är obetydlig. Fastighetsmäklaren ska, innan avtal ingås, informera säljare och tilltänkta köpare om sådana tjänster samt den ersättning denne, eller fastighetsmäklarföretaget, får för dessa. Redovisning av våra sidotjänster: Förmedling av Hemnet-annons i enlighet med administrationsersättningen nedan.

ANNONSERING PÅ HEMNET.SE:
Mäklarföretaget erhåller en administrationsersättning om 600 kronor för varje annons som publiceras på Hemnet. Mäklarföretag kan välja att samarbeta med Hemnet i marknadsföringssyfte och förmedling av Hemnets tilläggsprodukter där mäklare förväntas ge råd och rekommendationer till bostadssäljaren om vilken eller vilka av Hemnets produkter som passar bäst utifrån tex marknadsförhållanden och kundens situation. För detta arbete utgår en provision på de produkter som bostadssäljaren köper av Hemnet. Nivån på provision beräknas kvartalsvis och kan variera mellan 0 och 30% beroende på
andel annonser där bostadssäljaren har valt ett uppgraderat annonspaket på sin mäklares rekommendation.

HANTERING AV PERSONUPPGIFTER:
Vill du veta mer hur vi behandlar dina personuppgifter så kan du läsa det på: www.croisette.se/sekretesspolicy. Vi uppmanar dig att läsa den i sin helhet.

Planritningar

Kolla restider

Magistratsvägen 14D, 22643 LUND

Alla lediga objekt