Ta del av vår sekretesspolicy.
Malmö, Kirseberg

Ebba Ströms gata A2-5

5 490 000 SEK
Boarea: 115 m2
Tomtarea: 172 m2
Rum : 4
Tillbaka till projektet

Bostadsbeskrivning

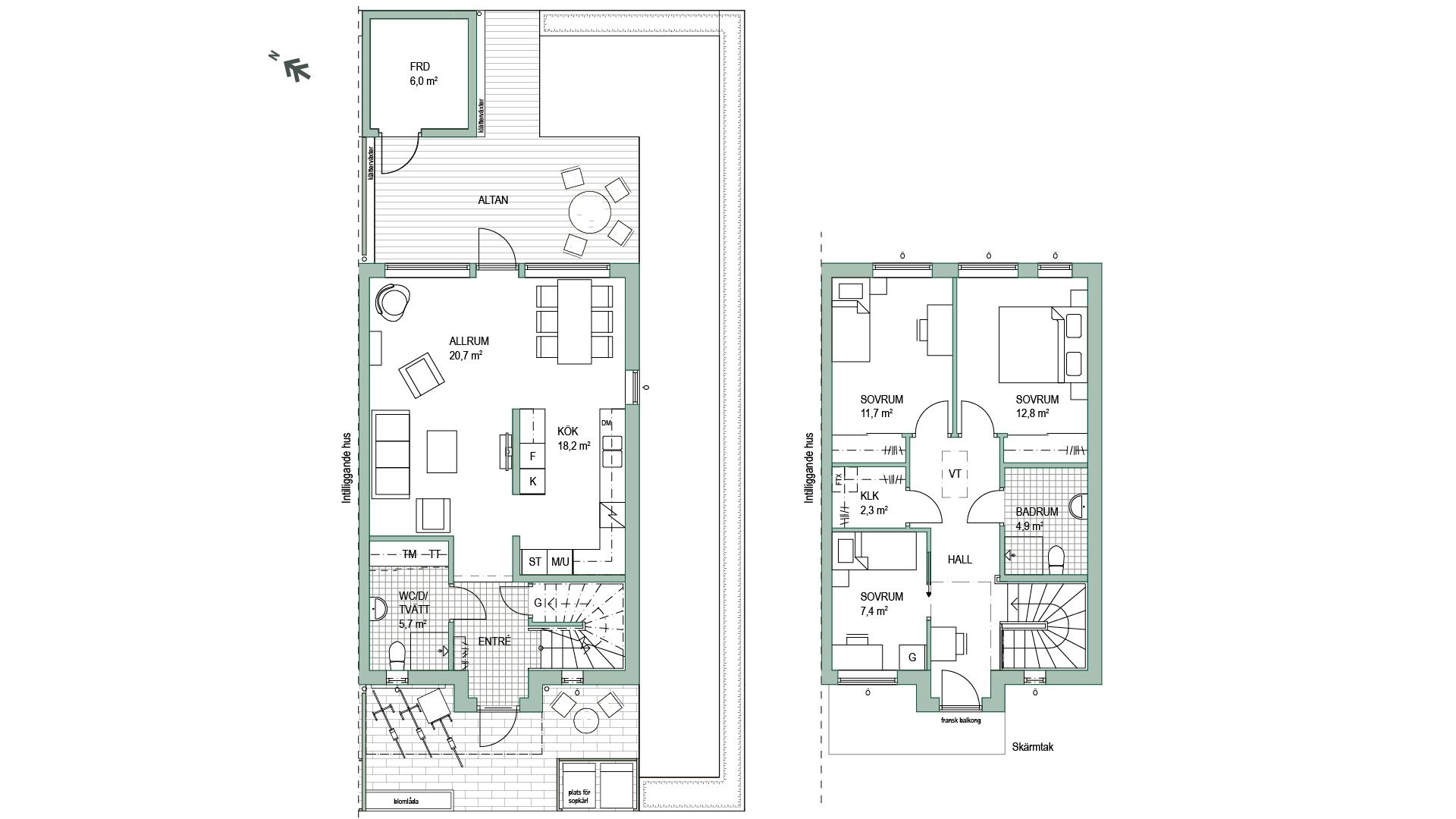
Till husen i Parkstråket har vi valt ut material och produkter från välkända varumärken. För att du ska kunna sätta din egen personliga prägel på ditt nya hem ger vi dig möjlighet att göra olika typer av inredningsval. I Deromes tillvalsportal presenteras inredningen i sin helhet. På entréplanet öppnar fönsterpartier för solljus och utsikt mot baksidan. Här finns köket och vardagsrummet som husets hjärta, med plats för umgänge. Det moderna vinkelköket ger ett privat hörn i den annars öppna planlösningen och matplatsens fönster vetter mot trädgården och uteplatsen med förmiddagssol. På entréplanet finns också WC med dusch och separat tvättmaskin och torktumlare. På husets övervåning möts du av en öppen yta, där en fransk balkong och ett högt sittande fönster välkomnar dagsljuset i rummet. Här finns möjlighet att möblera för en mindre arbetsplats eller för barnens skolarbete. På ovanvåningen ligger sovrummen samlade, ett större och två något mindre. Det finns en gemensam klädkammare och garderober i varje sovrum, med plats för säsongskläder och familjens sportutrustning.

Basfakta

Upplåtelseform:

Friköpt

Typ:

Radhus

Boarea:

115 kvm

Areakälla:

säljarens information

Antal rum:

4

Varav sovrum:

2 - 3

Byggnad

Energideklaration:

Energideklaration: Ej angivet

Fastighet

Tomtarea:

172 kvm

Beskrivning bilplats:

Till huset ingår en parkering på kvartersgata med elbilsladdning.

Beskrivning uteplats:

Uteplats - trädgård med förmiddagssol

Försäkringsbelopp:

Fullvärde

Omgivning

Allmänt om området:

Kirseberg är en stadsdel i norr Malmö. Här har vi både flerfamiljshus, charmiga gatuhus samt lägenheter. Kirsebergs område har ett fantastiskt utbud av gröna parker som Flygfältsparken på Bulltoftafältet, Beijers park, Gerlachs park, och Garnisonsplanteringen, även kallad "Tjyvaparken".

Du har ett bra utbud av sport i Kirsebergs-området som de två fotbollsklubbarna Malmö City Football Club, BK Flagg samt damlaget Backarnas FF. I Kirseberg finns också innebandyföreningen Malmö FBC. På Segevångsbadet håller simklubben SK Ran träning på sommarhalvåret. Segevångsbadet är även öppet för allmänheten. Självklart har vi Kirsebergs Ishall där IK Pantern håller till. För den golf intresserade har vi Malmö Burlöv Golfklubb.

Kända riktmärken för området är bland annat Kirsebergsmöllan samt Gamla vattentornet.

Fram till 1972 var Bulltofta flygplats Malmös andra flygfält, och kallas av denna anledning än idag för Bulltoftafältet, kirsebergare kallar det bara för Fältet.

I skol samt förskole väg har du bra utbud med bland annat Kirsebergsskolan, Backaskolan, Bulltoftaskolan, Gripens förskola Valdemarsro förskola och Bulltofta förskola Lingonet.

Midhem är en knutpunkt som kopplar ihop bra förbindelser och kommunikationsmöjligheter. Man når enkelt både inre samt yttre ringleden men även E22 till Lund. Man har även utmärkta kommunikationsförbindelser med buss både till Malmö och Lund. Vi har även en snabbmatskedja samt en bensinmack, bra med dagvaruhandel i form av Netto och Coop, hotell och restauranger. Skulle man inte nöja har man även köpcentrumet Entré/Malmö Plaza ett stenkast bort.

Man har utmärkta parkeringsmöjligheter i områdena.

Kolla restider

Ebba Ströms gata A2-5, 21250 Malmö

Alla lediga objekt