Ta del av vår sekretesspolicy.
Trelleborg, Grönby

Grönbyvägen 87-0

9 500 000 SEK
Boarea: 360 m2
Biarea: 10 m2
Tomtarea: 59000 m2
Rum : 10
Tillbaka till Lantliv
Grönby Prästgård - Unik gård belägen i pittoresk bymiljö.

Kan du se dig själv i ett par Hunter gummistövlar och oljerock på skogspromenad med din labrador och efter den ta din Land Rover för att göra dina inköp på närbelägen gårdsbutik till kvällens middag då ska du definitivt åka och köpa denna fastighet. Fantastisk gård med engelsk charm belägen i härlig bymiljö. Önskar du dessutom ett separat boende utöver mangårdsbyggnaden, genuina ekonomibyggnader, häststall med 2 boxar, fina hästhagar, stor parktomt och en total areal på 5,9 hektar är Grönby Prästgård hemmet för dig.

Bostadsbeskrivning

Rumsbeskrivning

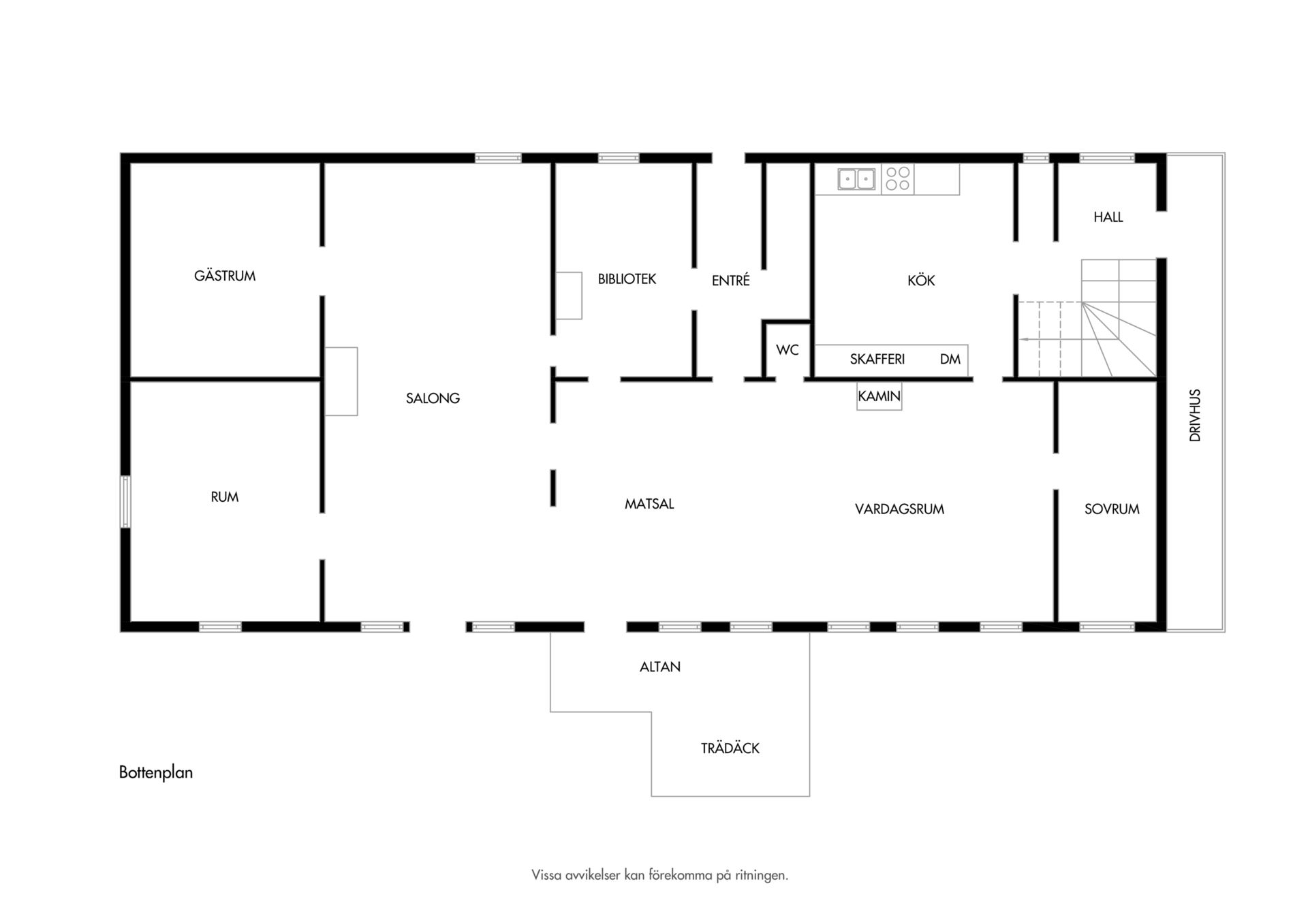
Mangårdsbyggnad Ståtlig mangårdsbyggnad i två plan med generösa ytor och flexibel planlösning. Bottenvåningen rymmer flera sällskapsrum såsom salong, matsal, vardagsrum och bibliotek, samt ett välutrustat kök. Här finns även två-tre sovrum, wc och praktiska entréytor. Ovanvåningen erbjuder två stora sovrum, ett vardagsrum, badrum, walk-in-closet samt goda förvaringsmöjligheter i vindsutrymmen. En byggnad med karaktär, charm och plats för både familjeliv och representativa sammanhang.

Entré

Redan i entrén möts man av husets karaktär. Den vackra trädörren, blyinfattade fönster och synliga takbjälkar ger ett varmt och rustikt första intryck. Golvet i tegel är både slitstarkt och tidstypiskt, och bidrar till den lantliga känslan. Här finns plats för klädförvaring och god överblick mot resten av huset.

Gäst-wc

I huvudentrén ligger en bra placerad gäst-wc med wc, tvättställ och klinkergolv.

Bibliotek

Trevligt bibliotek med vackert tegelgolv, trägolv, kakelugn och synliga takbjälkar. detta rum binder samman huvudentrén med övriga sociala ytor.

Groventré

Stor rymlig groventré med plats ytterkläder, skor och övrig förvaring.

Kök

Ljust och inbjudande kök med lantlig karaktär och praktisk utformning. Köket är utrustat med vita skåpsluckor, bänkskivor i trä och en rejäl köksö som ger extra arbetsyta och förvaring. Tidlösa detaljer som vitrinskåp, infällda handtag och en klassisk spiskåpa bidrar till den varma känslan i rummet. Här finns gott om plats för matgrupp intill fönstren med utsikt över gårdsplanen. Fullt utrustat med inbyggd ugn, mikro, diskmaskin och bra förvaring i skafferi.

Matrum

Matrummet är hemtrevligt och rymligt, med plats för stora sällskap kring matbordet. Rummet präglas av synliga takbjälkar och vackert trägolv som tillsammans ger en varm och traditionell känsla. Fönster i två väderstreck släpper in gott om ljus och skapar en ljus och luftig stämning. Här finns en naturlig förbindelse mellan kök, salong och vardagsrum, vilket gör rummet till en central samlingspunkt i huset.

Salong/Sal

Den stora salen är husets hjärta och bjuder in till både vardagligt umgänge och festliga tillställningar. Här finns gott om plats för flera sittgrupper, matsalsmöblemang och socialt liv. Rummet präglas av vacker fiskbensparkett, synliga takbjälkar och dekorativa takmålningar som bevarar husets ursprungliga charm. En klassisk öppen spis ger både värme och karaktär, och de många fönstren skapar ett naturligt ljusflöde som lyfter rummet ytterligare.

Allrum

Ljust och trevlig allrum med fönster mot trädgården. Parkettgolv, ljust målade väggar och tak. Stor fungerande braskamin.

Sovrum (bottenvåning)

På bottenvåningen finns ett praktiskt sovrum med avskilt läge. Fönster ger fint ljusinsläpp och skapar en ljus atmosfär. Här finns plats för säng, förvaring och skrivbord eller annan möblering efter behov.

Kontor/gästrum

Härligt rum med fönster mot trädgården. Synliga takbjälkar, trägolv och tapetserade väggar.

Kontor/sovrum

Vidare på nedervåningen finns ytterligare ett sovrum med fönster in mot gården. Tapetserade väggar, trägolv och synliga takbjälkar

Ovanvåning

En trappa upp finns en rymlig och välplanerad ovanvåning med gott om plats för både familjeliv och privatliv. Här finns två stora sovrum, båda med bra ljusinsläpp och möjlighet till flexibel möblering. Ett extra allrum fungerar perfekt som TV-rum, lekrum eller arbetsyta. Det finns också ett badrum, walk-in-closet med god förvaring samt två separata vindsutrymmen som lämpar sig för ytterligare förvaring eller hobbyverksamhet. Våningen ramas in av en central hall som binder samman alla rum på ett praktiskt sätt.

Bostad 2

Bostadsdelen är välplanerad och inbjudande med ljusa ytor och god rymd. Här möts man av en praktisk hall med direkt access till grovkök och vidare in i bostadens hjärta – ett stort och charmigt kök med klassisk inredning, gott om arbetsyta och plats för matbord. Köket är både funktionellt och hemtrevligt, med fönster som släpper in fint ljus.

I anslutning ligger ett rymligt vardagsrum med plats för både soffgrupp och matsalsmöbler. Ljusa väggar och flera fönster ger en luftig känsla och fin utsikt över trädgården. Härifrån nås även sovrummet som rymmer dubbelsäng och förvaringsmöbel och har ett rofyllt läge mot husets gavel.

Badrummet är helkaklat i neutrala toner och utrustat med dusch, wc och kommod.

Basfakta

Upplåtelseform:

Friköpt

Typ:

Avstyckad gård

Boarea:

360 kvm

Biarea:

10 kvm

Areakälla:

taxeringsinformation

Antal rum:

10

Varav sovrum:

5

TV & Bredband:

Fiber

Pantbrev:

7

Pantbrev summa:

4 276 700

Byggnad

Byggnadstyp:

Avstyckad gård

Grundläggning:

Betongplatta samt krypgrund på en liten del.

Grundmur:

Natursten

Stomme:

Tegel

Fasad:

Puts och tegel

Fönster:

2-glas

Bjälklag:

Trä

Tak:

Tegelpannor

Utvändigt plåtarbete:

Lackerad plåt

Uppvärmning:

Jordvärme

Ventilationstyp:

Självdrag

Renoveringar:

Huset dränerat 2013
Varmvattenberedare 2017/2018
Kök renoverat 2017/2018
Alla förutom två fönster bytta 2019
Fasad målad 2025

Övriga byggnader:

Söderlänga inrymmer 85kvm stort boende fördelat på grovkök, kök, vardagsrum, sovrum och badrum. Utöver boendet finns det garage, snickeri, toalett och grovkök. Länga mot Öster inrymmer stor verkstad och stallbyggnad (fd grisstall) Mot norr ligger stall med 2 hästboxar. trevlig och luftigt stalldel samt finns det bra hagar och bar vägar att rida ut på. Enkelt för dig som önskar har häst hemma på gården. Stor loge. Total yta för ekonomibyggnaderna ca 1030kvm.

Energideklaration:

Energideklaration: Beställd

Driftkostnad

Antal personer i hushållet:

6 st

Elkostnad:

55 000 SEK/år

Vatten och avlopp:

14 000 SEK/år

Väg/samfällighet:

500 SEK/år

Sophantering:

2 900 SEK/år

Total driftkostnad:

72 400 SEK/år, utöver detta tillkommer kostnad för fastighetsavgift/skatt 10074 SEK

Elförbrukning:

33 000 kWh/år

Nätbolag:

Trelleborgs Kommun Energi

Elleverantör:

Trelleborgs Kommun Energi

Fastighet

Fastighetsbeteckning:

Grönby 1:4

Vatten och avlopp:

Kommunalt vatten året om samt egen brunn. Kommunalt avlopp.

Servitut etc.:

Avtalsservitut Avloppsledning mm(2 st)
Avtalsservitut Elledning
Avtalsservitut Jordvärme
Avtalsservitut Vatten- och avloppsledningar mm
Last: Avtalsservitut Avloppsledning mm, 12-IM2-84/3168.1
Last: Avtalsservitut Avloppsledning mm, 12-IM2-84/3169.1
Last: Avtalsservitut Elledning, 1287IM-10/9152.1
Last: Avtalsservitut Jordvärme, 1287IM-12/2179.1
Last: Avtalsservitut Vatten-och avloppsledningar mm, 12-IM2-88/15469.1

Planbestämmelser:

Områdesbestämmelser (2004-10-18)

Tomtarea:

59000 kvm

Tomttyp:

Hagar, innergåd och trädgård

Försäkringsbolag:

Dina Försäkringar

Försäkringsbelopp:

Fullvärde

Taxering

Summa tax. värde:

4 411 000 SEK

Preliminärt taxeringsvärde:

Nej

Lantbruksenhet

Typkod:

120 Lantbruksenhet, bebyggd

Taxeringsår:

2023

Värderingsenheter

Åkermark

Taxeringsvärde:

1 028 000 SEK

Småhusbyggnad

Värdeår:

1929

Taxeringsvärde:

1 766 000 SEK

Småhusmark

Taxeringsvärde:

840 000 SEK

Ekonomibyggnad

Taxeringsvärde:

777 000 SEK

Omgivning

Allmänt om området:

Grönby kyrkby är belägen i ett av de vackraste landskapen i Skåne – ett böljande hedlandskap som för tankarna till den skotska landsbygden. Här möts man av öppna fält, kuperade marker och närheten till både Havgård och Börringesjön. Gabeljungskogen bjuder på lummig blandskog, perfekt för promenader och utflykter, samtidigt som de historiska herrgårdarna Havgård och Börringekloster förstärker byns unika charm.

Byn är strategiskt placerad mellan två helt olika naturtyper: söderut breder den skånska slätten ut sig, medan man på bara 10–15 minuter når stränderna vid Beddingestrand och Skateholm. Kombinationen av inlandets kullar och havets horisont ger en sällsynt rik naturupplevelse.

Grönby kyrkby är dessutom en av Skånes mest genuina byar, präglad av mångfald. Här samsas små gathus med stora gårdar och klassiska skånelängor runt den vitkalkade kyrkan, vars anor går tillbaka till 1300-talet. Variation i bebyggelse speglar också variation i invånare, och här råder en varm och inkluderande bygemenskap där man värnar om både miljön och byns karaktär.

För barnfamiljer är området mycket attraktivt. I närliggande Anderslöv finns full service med dagis, skolor och fritidsaktiviteter. Utöver de kommunala alternativen lockar bland annat föräldrakooperativet Börringebarnen, beläget på Börringeklosters mark, samt den välrenommerade Pilens Montessori i Fru Alstad. Skolbussen hämtar och lämnar dessutom direkt utanför dörren. För barn och ungdomar erbjuds ett brett utbud av aktiviteter – från fotboll och ridning till musik och teater.

Mat- och dryckesupplevelser finns på nära håll. Grönby Chark är en välkänd destination för delikatesser av högsta kvalitet och ett givet stopp för både bybor och långväga besökare. På Börringekloster driver Anithas sin uppskattade restaurang och kafé i herrgårdsmiljö, där lokala råvaror får spela huvudrollen. För den vinintresserade ligger Hällåkra vingård bara en kort bilfärd bort – en av Skånes främsta vingårdar med egen vinproduktion, provningar och restaurang.

Grönby erbjuder helt enkelt en livsstil där natur, kultur, gemenskap och gastronomi möts – en plats att leva och trivas på, året runt.

Planritningar

Kolla restider

Grönbyvägen 87-0, 23173 Anderslöv

Alla lediga objekt