Uppsala

Danmarksgatan 26

Storlek: 681 m2
Bostadstyp: Industrial;Logistics
Tillträde: Enligt överenskommelse.
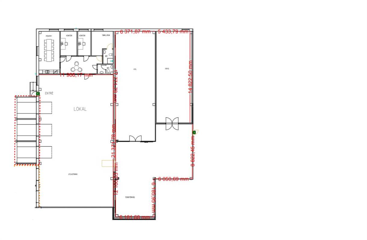
Planritning
Tillbaka till Lokaler
681 kvm markplanslokal med kyl/frys och tre lastkajer

Lokalen omfattar totalt ca 681 kvm i markplan och erbjuder flexibla ytor som kan anpassas för flera olika typer av verksamheter. Med tre generösa lastkajer blir både in- och utlastning smidig och effektiv, oavsett om lokalen används som lager, verkstad, produktionsyta eller för logistiklösningar.

En av de stora fördelarna är tillgången till både kyl- och frysrum, vilket gör att lokalen även lämpar sig för verksamheter med behov av temperaturkontrollerad hantering, exempelvis inom livsmedel eller distribution. Utöver de större öppna ytorna finns även en mindre kontorsdel med plats för arbetsplatser, möten eller administration, samt ett pentry som underlättar vardagen för personalen.

Läget är mycket synligt tack vare skyltmöjligheter mot både Danmarksgatan och Verkstadsgatan. Lokalen är placerad i direkt anslutning till kommunikationer och annan service, vilket gör den lättillgänglig för både kunder, leverantörer och medarbetare. Kombinationen av lastkajer, kyl- och frysmöjligheter samt kontorsdel ger en komplett lösning för företag som söker en funktionell och flexibel lokal i ett attraktivt läge.

Varmt välkomna att kontakta oss på Croisette för att ta del av ytterligare information och bokning av visning!

Kolla restider

Danmarksgatan 26, 75323 Uppsala

Omgivning

Boländerna är ett av Uppsalas mest attraktiva verksamhetsområden med starkt skyltläge och närhet till både centrum och E4:an. Här samsas handel, logistik och produktion med ett brett serviceutbud, där bland annat IKEA, köpcentrum och dagligvaruhandel finns runt hörnet. Området har mycket goda kommunikationer med bil, buss och cykel, vilket gör det lättillgängligt för både kunder och personal.

Företag i närheten

Bauhaus, Elgiganten, IKEA, Biltema, XXL och många fler.

Närservice

I området finns ett stort utbud av service nära till hands – allt från lunchrestauranger och caféer till bilverkstäder, bygghandlare och grossister. I närheten hittar du även gym samt både bensin- och laddstationer.

Alla lediga objekt